powrót

Projekt domu Alicja N 2G+ BSB1131

Pow. użytkowa
138,55 m2
Kubatura
881 m3
Wysokość domu
8,8 m
Pow. zabudowy
146,44 m2
Min. szer. działki
23,55 m
Kąt nach. dachu
40 st
Projekt domu Alicja N 2G+ progress

Opis projektu

Wychodząc na przeciw naszym Klientom przygotowaliśmy dom inspirowany kultowym Opałkiem – projekt Alicja N 2G. Tym razem zwieńczeniem czterospadowego dachu jest kalenica, która w wielu lokalizacjach jest wymogiem stawianym przez urzędy. Innym parametrem jest wysokość domu poniżej 9m – Alicja spełnia ten warunek. Nieznacznie ale zauważalnie zmieniliśmy proporcje domu nadając mu dynamiczności oraz udoskonaliliśmy jego układ funkcjonalny wewnątrz. Dom zachowuje nowoczesny wygląd oraz modną obecnie kolorystykę. Wewnątrz domu na parterze wygodny układ pomieszczeń dostosowany jest do obecnych trendów. Z wiatrołapu mamy dostęp do garażu oraz do garderoby, dalej wchodzimy do hallu. Duży salon wraz z wydzieloną jadalnią może zostać w ramach adaptacji powiększony o część tarasową (wielu Inwestorów robi tak w Opałku – konstrukcje obu domów umożliwiają taką przeróbkę). Ponadto w salonie znajduje się tradycyjnie kominek. Sporych rozmiarów kuchnia posiada przejście do jadalni (istnieje możliwość zamknięcia przejścia). Na parterze zlokalizowany jest też gabinet (pokój osoby starszej) oraz łazienka z prysznicem. Na poddaszu znajdują się trzy sypialnie oraz duża łazienka. Dwie sypialnie - w tym sypialnia rodziców – posiadają własne balkony. Ponadto sypialnia rodziców posiada własną łazienkę oraz garderobę. Układ konstrukcji dachu umożliwia dowolną aranżację poddasza, w tym uzyskanie czterech sypialni. Dom polecamy rodzinom 4-5 osobowym!

Zadzwoń do nas!

Cena: 5260 zł

  • Warunki zwrotu i wymiany
  • Czas dostawy

Rzut kondygnacji projektu Alicja N 2G+ - Rzut parteru

1 wiatrołap: 3,1 m2
2 garderoba: 1,77 m2
3 kuchnia: 9,78 m2
4 pokój dzienny + jadalnia: 36,94 m2
5 pokój: 8,82 m2
6 schody: 4,36 m2
7 hall: 2,43 m2
8 łazienka: 2,61 m2
9 garaż dwustanowiskowy: 28,95 m2
10 pomieszczenie gospodarcze: 7,69 m2
11 taras: (17,5 m2)

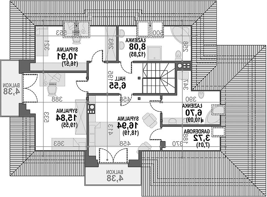
Rzut kondygnacji projektu Alicja N 2G+ - Rzut poddasza

1 hall + schody: 6,55 m2
2 łazienka: 8,08 m2 (12,85 m2)
3 pokój: 10,91 m2 (16,57 m2)
4 pokój: 15,84 m2 (19,55 m2)
5 pokój: 16,94 m2 (18,19 m2)
6 garderoba: 3,72 m2 (7,01 m2)
7 łazienka: 6,7 m2 (10,09 m2)
8 balkon: (4,38 m2)
9 balkon: (4,38 m2)

Usytuowanie domu na działce

Technologia budowy domu

Ściany zewnętrzne: tradycyjne dwuwartwowe (pustak ceramiczny + styropian frezowany). Stropy: żelbetowy monolityczny. Schody wewnętrzne:. Schody: ażurowe, drewniane lub stalowo-drewniane, indywidualne. Dach: dach czterospadowy o konstrukcji drewnianej, pokryty dachówką ceramiczną, cementową lub blachodachówką.

Elewacje

autor: DOMINANTA K.SUTUŁA, K.BURZYŃSKI, K.MARKIEWICZ s.j.