powrót

Projekt domu Dom przy Alabastrowej 18 KRK1332

Pow. użytkowa
130 m2
Kubatura
674,6 m3
Wysokość domu
8,01 m
Pow. zabudowy
126,28 m2
Min. szer. działki
22,95 m
Kąt nach. dachu
40 st
Projekt domu Dom przy Alabastrowej 18 progress

Opis projektu

Projekty z kolekcji Dom przy Alabastrowej są opracowane na planie prostokąta w różnych odmianach funkcjonalnych i wielkościowych. Projekt Dom przy Alabastrowej 18 należy do grupy przeznaczonej do lokalizacji na działkach z wjazdem od południowej strony. Dobrze też sprawdza się w lokalizacji na działkach z wjazdem od strony południowo-wschodniej lub wschodniej oraz w odbiciu lustrzanym na działkach z wjazdem od strony południowo zachodniej i zachodniej. Lekka kolorystyka elewacji i dachu jest tłem dla wyraźniej zarysowanych okien w okładzinie drewnianej o miodowym odcieniu. Wejście do domu zaakcentowane jest wdzięcznym zestawieniem lukarny, balkonu i drzwi wejściowych w układzie wertykalnym. Wnętrze domu zawiera nowoczesny program użytkowy z rozbudowanym zapleczem gospodarczym.

Projekt został
wycofany z oferty

W razie pytań prosimy o kontakt
z Centrum Obsługi Klienta tel: 71 715 20 60

Rzut kondygnacji projektu Dom przy Alabastrowej 18 - Rzut parteru

1 wiatrołap: 4,85 m2
2 hall: 8,26 m2
3 pokój dzienny: 22,72 m2
4 kuchnia: 11,37 m2
5 spiżarnia: 1,3 m2
6 pomieszczenie gospodarcze: 3,49 m2 (4,84 m2)
7 łazienka: 4,23 m2
8 kotłownia: 9,69 m2
9 garaż jednostanowiskowy: 20,72 m2
10 pokój: 10,01 m2

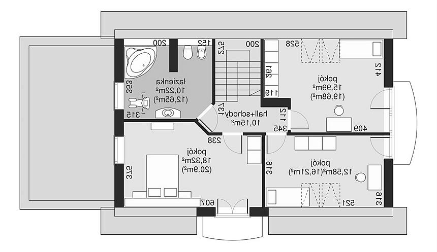
Rzut kondygnacji projektu Dom przy Alabastrowej 18 - Rzut poddasza

11 korytarz + schody: 10,15 m2
12 łazienka: 10,22 m2 (12,65 m2)
13 pokój: 18,32 m2 (20,9 m2)
14 pokój: 12,58 m2 (16,21 m2)
15 pokój: 15,99 m2 (19,68 m2)

Usytuowanie domu na działce

Przekrój

Technologia budowy domu

Ściany zewnętrzne: pustak 25 cm, styropian 15 cm. Ściany nośne: pustak 25 cm. Strop: monolityczny żelbetowy. Dach: kąt nachylenia 40°, pokrycie - dachówka ceramiczna lub betonowa.

Elewacje

autor: GALERIADOMOW.PL